Rue Basse 2, 1490 Court-saint-etienne Belgium
Situation :
Situé à l’entrée du charmant village de Faux, avec une vue imprenable sur la campagne environnante, cet immeuble bénéficie d’un accès très rapide à la gare (200 mètres à pied), et à la N25 sans en avoir les nuisances. C’est un véritable havre de paix à la campagne, le tout à deux pas de Bruxelles, Louvain-la-Neuve et le centre de Court-St-Etienne.
Description :
Les « Balcons de Faux », un immeuble de très haut standing, offrent de nombreux avantages : de spacieux espaces de vie, une luminosité omniprésente, une qualité de construction exceptionnelle, ainsi que des performances énergétiques dépassant même les exigences européennes prévues pour 2050.
Les huit appartements sont équipés chacun de cinq panneaux photovoltaïques avec onduleurs individuels, d’une pompe à chaleur individuelle, d’une citerne d’eau de pluie, d’un groupe hydrophore individuels, de triple vitrage anti-chaud-froid, de ventilation double flux, et bien d’autres équipements modernes. Le label PEB A++, déjà obtenu, garantit une consommation quasi nulle et une empreinte carbone négative.
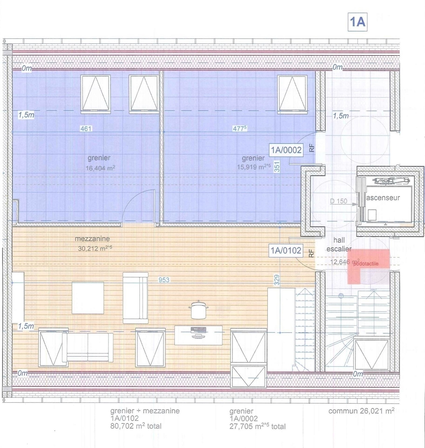
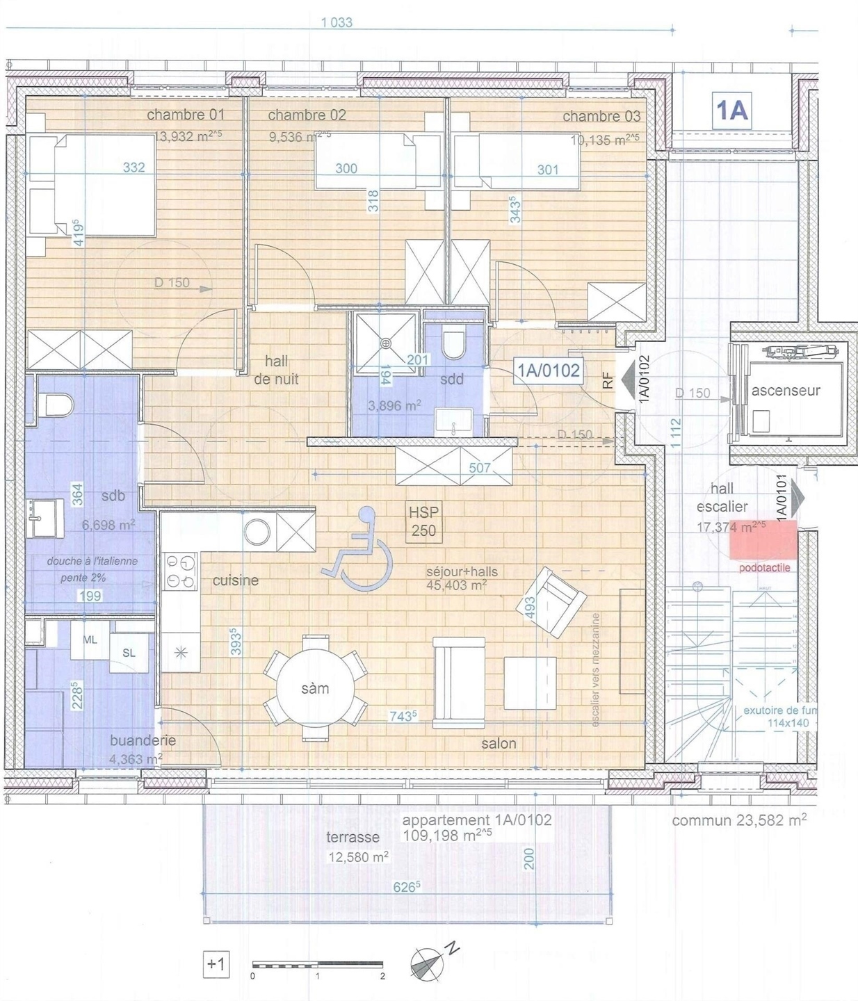
Chaque appartement dispose d’une belle terrasse bien orientée, de trois chambres, de deux salles d’eau, d’une buanderie, ainsi que d’un emplacement de parking intérieur sécurisé et d’un parking extérieur. Les duplex offrent une mezzanine aménagée pouvant accueillir une chambre supplémentaire, tandis que les rez-de-chaussée disposent d’un grenier accessible depuis le deuxième étage (sauf un appartement). La qualité des finitions et l’esprit exceptionnel qui se dégage de ces logements viennent parfaire ce très beau programme.
Cet appartement est prévu pour les personnes à mobilité réduite (PMR)
Composition :
Rez-de-chaussée :
Deuxième étage :
Mezzanine aménagée pouvant accueillir une autre chambre de +/- 66,32m² avec cinq velux accessible par l’escalier et ascenseur.Sous-sols : (obligation en supplément 25.000,-€ pour les deux),
Emplacement de parking intérieur sécurisé avec télécommande Emplacement de parking extérieur.
Tous les autres frais tels que frais de raccordements, frais de rédaction de l’acte de base, peinture sont INCLUS dans le prix ! Il reste juste les taxes et les frais de Notaires.
Publicité à caractère non contractuel et ne constituant pas une offre.
Les propriétaires se réservent le droit de décision, d'acceptation ou non sur toute(s) offre(s) soumise(s) pour leur bien.
