Bureau à vendre

250.000€

Grand'Place 35, 7070 Le Roeulx

266

Maison du 18ème siècle à rénover !

Type
Bureau
Statut
à vendre
annee de construction
1727
référence
7136463

Maison du 18ème siècle à rénover !

Situation :

Située sur la Grand-Place du Roeulx, à proximité directe des transports en commun, des commerces, des écoles et des axes autoroutiers.

Description :

Cette magnifique maison de maître classée datant au moins du début du XVIIIe en situation de gros oeuvre fermé n'attend plus qu'à être retravaillée afin de pouvoir retrouver son charme d'antan. Un projet de rénovation a déjà été pensé et propose 4 chambres (en aménageant le grenier), 2 salles d'eau, un grand living, une grande cuisine ainsi qu'un spacieux garage. Les différents plafonds, piliers, façades ainsi que les murs intérieurs ont été rénovées et restaurées en 2018, permettant d'installer la majorité du système électrique ainsi que du chauffage. Le collège du Roeulx a récemment accordé un changement d'affectation (si nécessaire) en bureaux de prestiges.

FAIRE OFFRE A PARTIR DE 250.000 € SOUS RESERVE D'ACCEPTATION DU PROPRIETAIRE

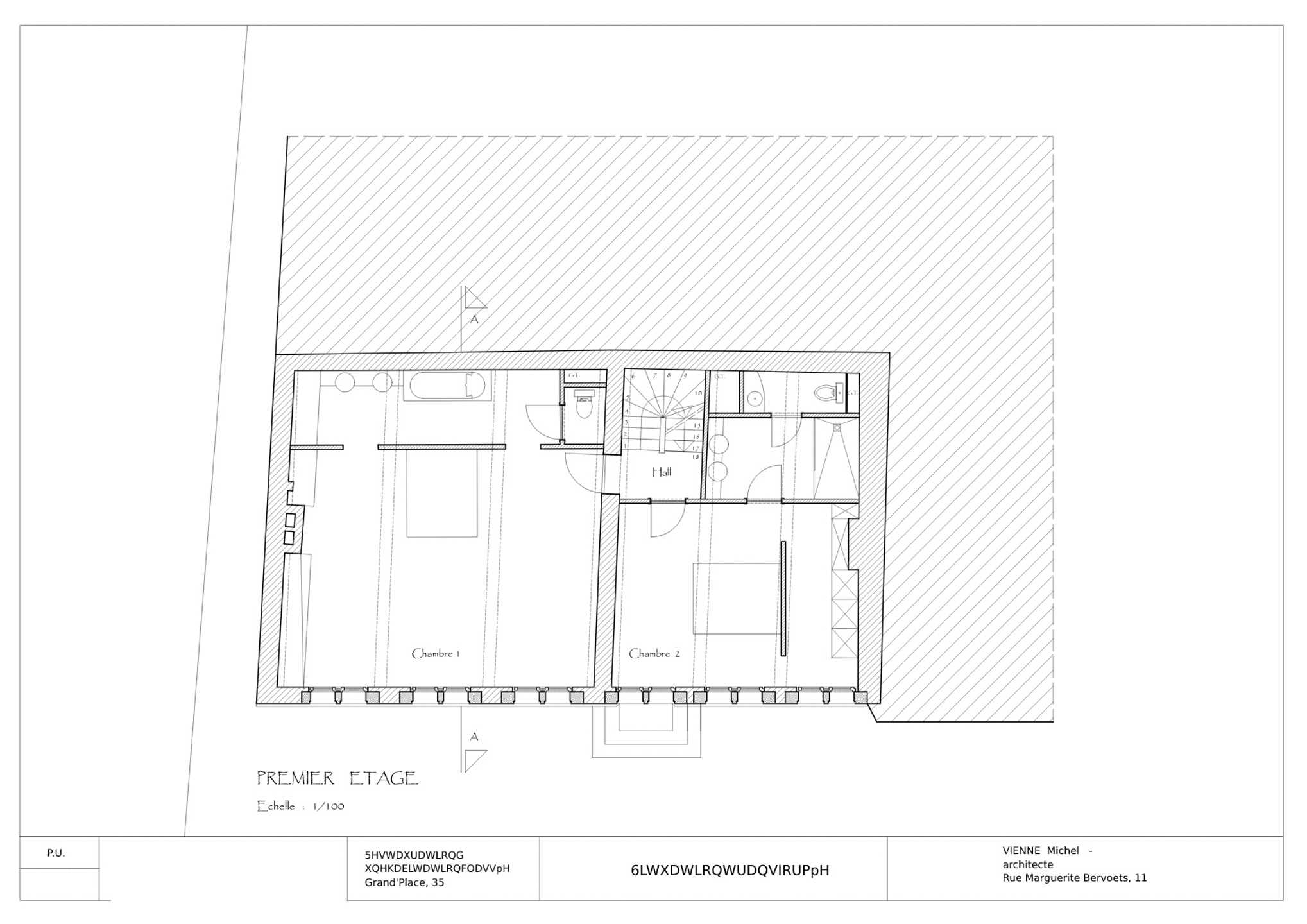
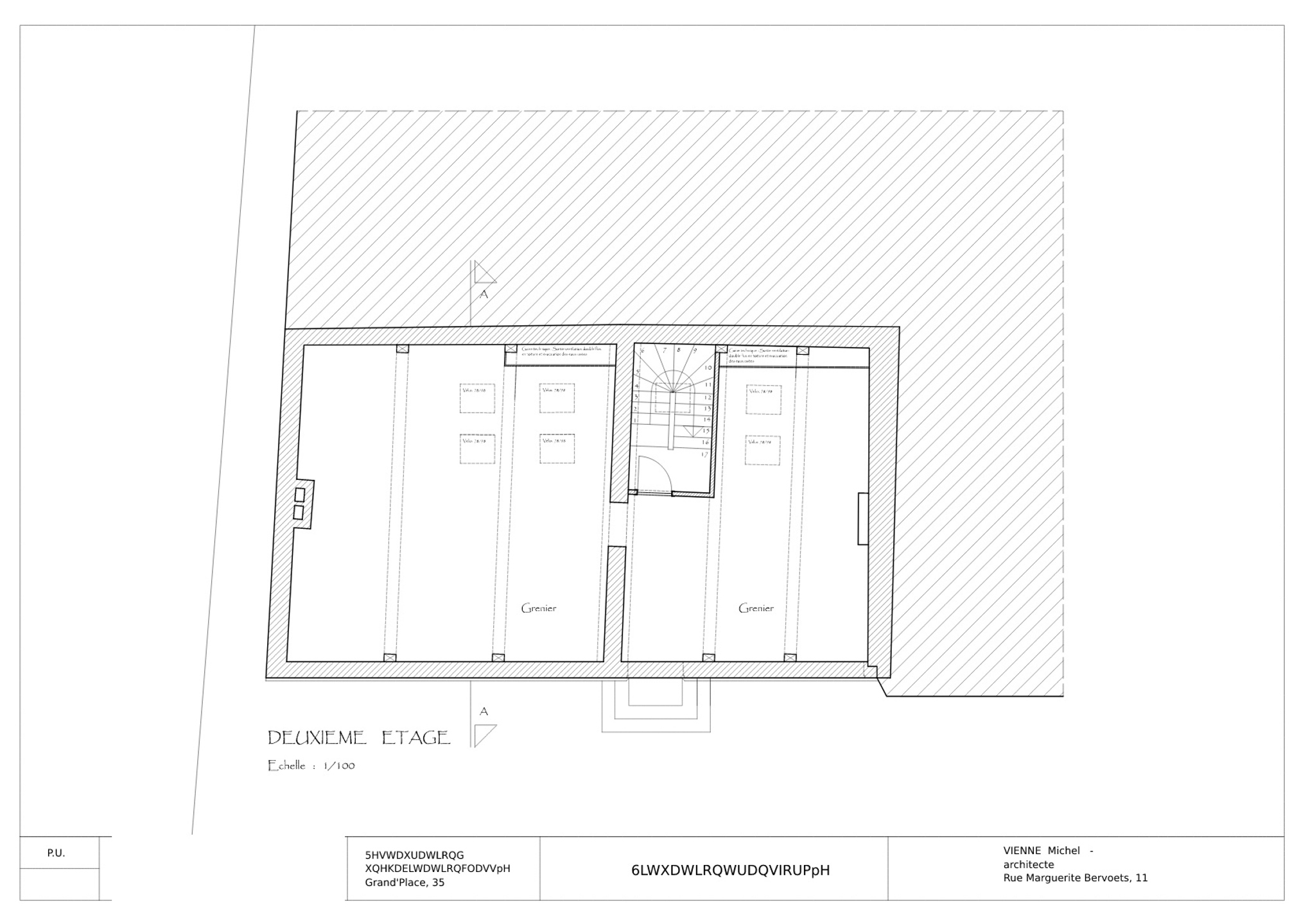
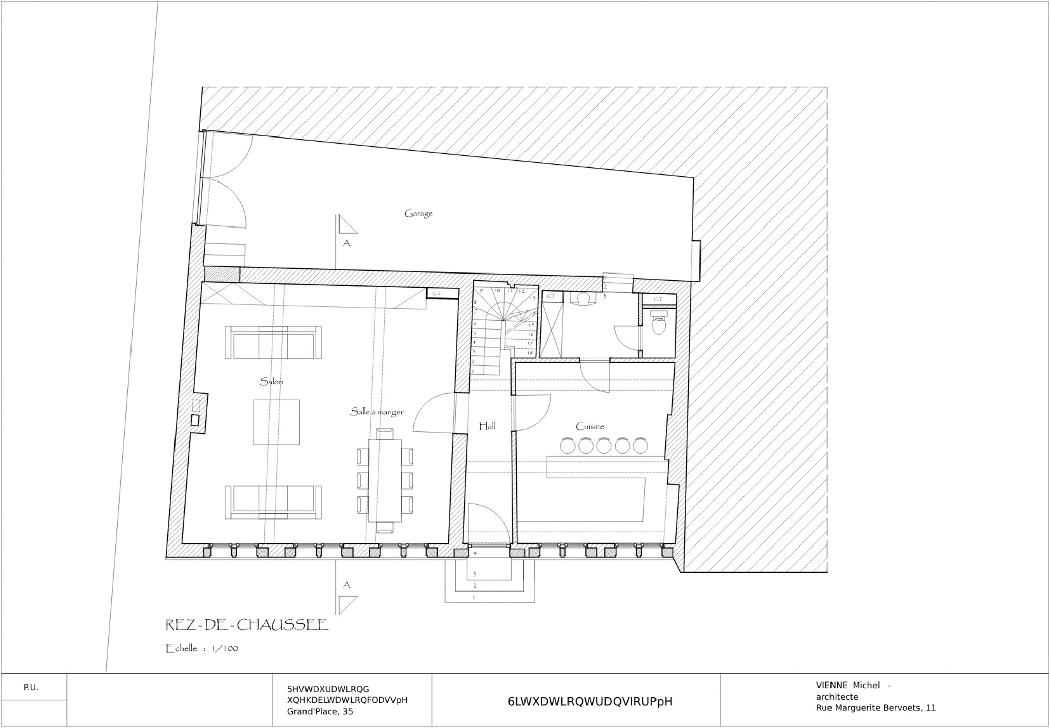
Composition du projet :

Rez-de-chaussée : Hall d'entrée de +/- 8,4 m², cuisine de +/- 20 m², living de +/- 48 m², buanderie de +/- 3 m², WC de 1 m², garage de +/- 40 m².

1er étage : Palier de +/- 1,8 m², chambre parentale de +/- 33 m², salle de bain de +/- 7 m², WC de +/- 1 m², deuxième chambre de +/- 21 m², salle de douche de +/- 6 m² comprenant deux lavabos, WC de +/- 2,5 m² comprenant un lave-main.

2ème étage : Deux greniers aménageables de +/- 42 et 32 m².

Sous-sol : Plusieurs caves à vin

Publicité à caractère non contractuel et ne constituant pas une offre.
Les propriétaires se réservent le droit de décision, d'acceptation ou non sur toute(s) offre(s) soumise(s) pour leur bien.

Bâtiment

Année De Construction : 1727

Equipement de base

Nbre De Toilette(S) : 2

Extérieur

Annee de construction : 1727
Sup. terrain : 154 m² ( = 1a )

Situation

Vous désirez plus d'informations ?